Обратный звонок

 +7 (4812) 542-601

    +7 (920) 668-24-58

E-mail: info.itcosnova@ya.ru

Наш опыт

Комплексное строительство объектов

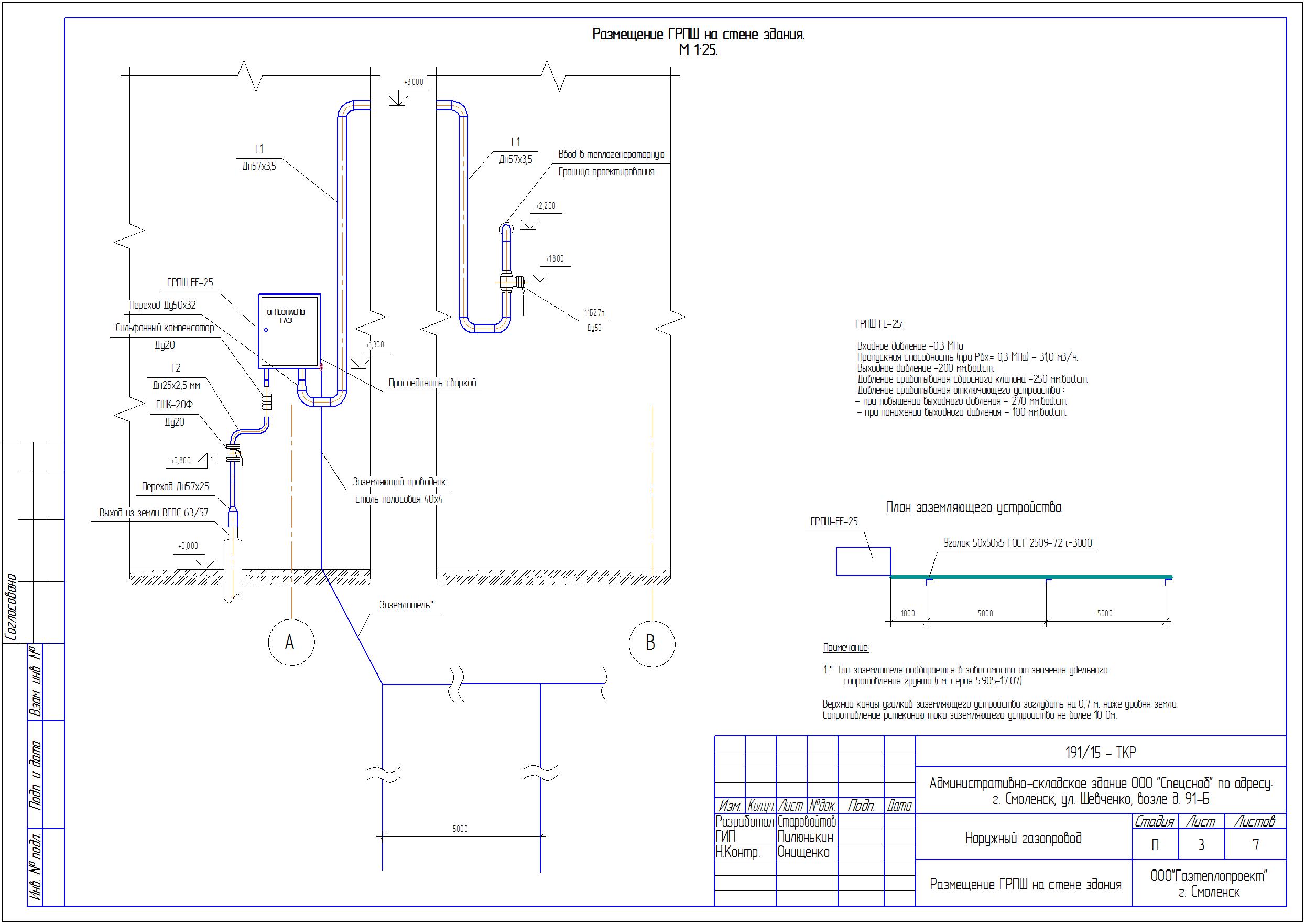
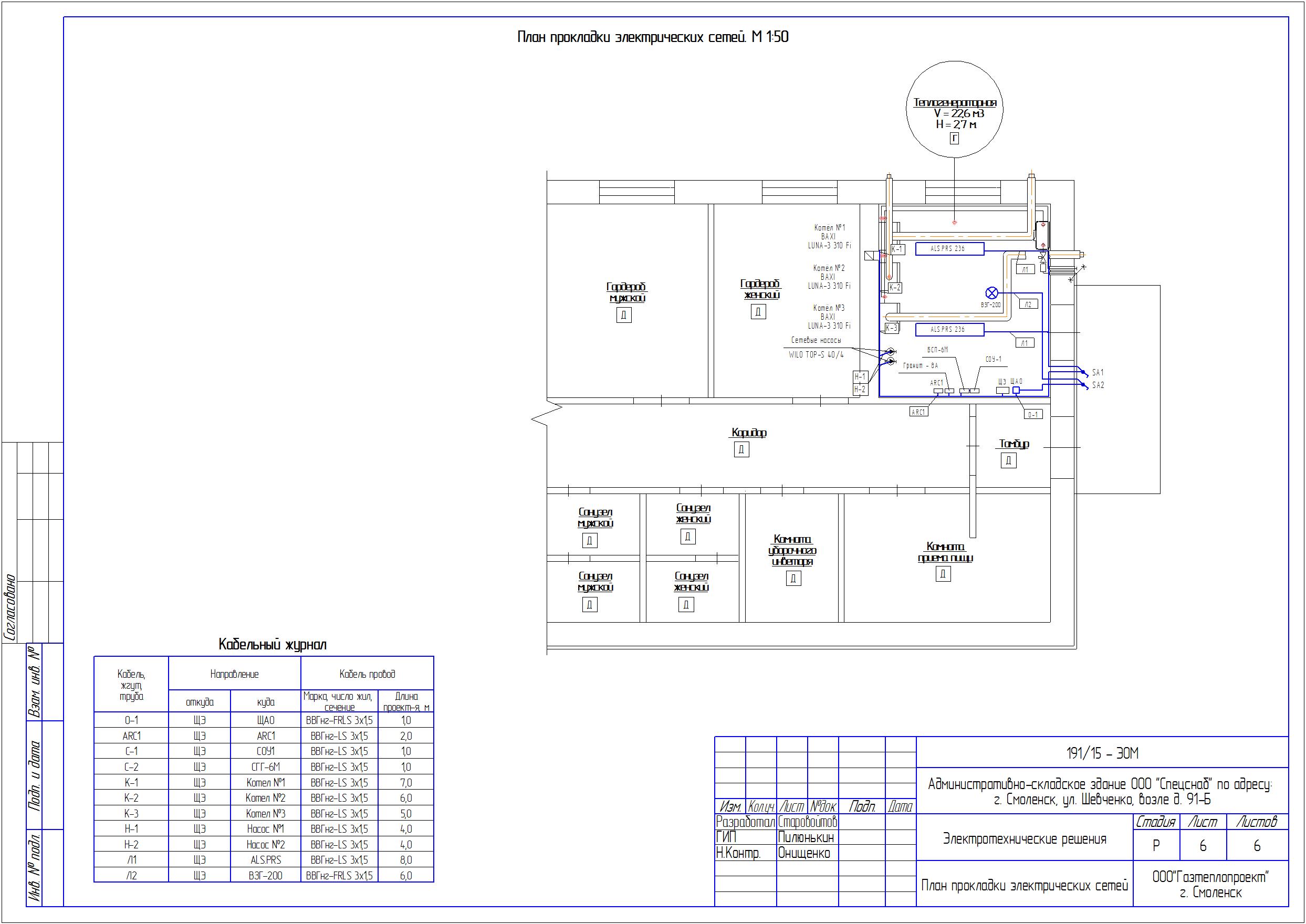
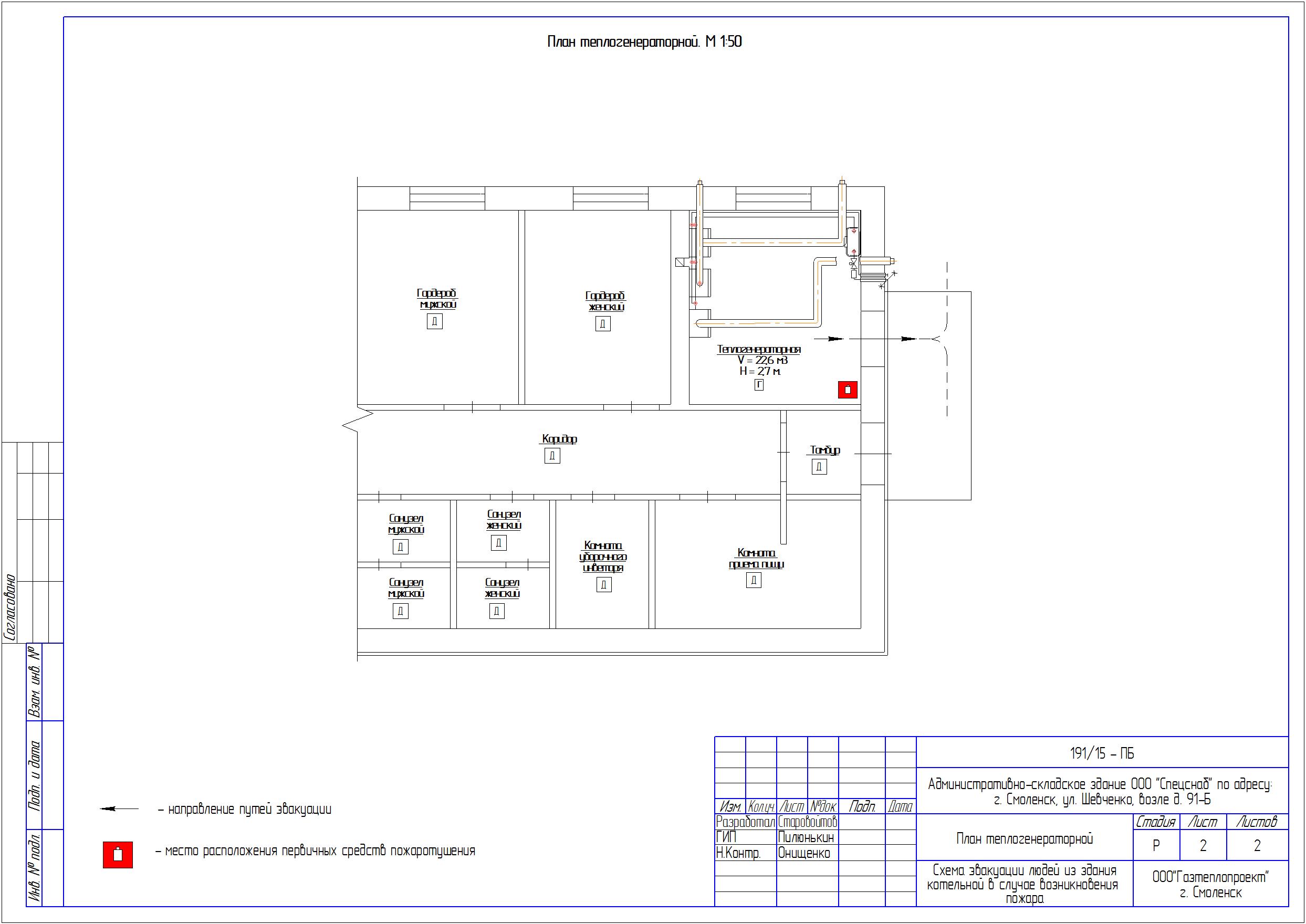
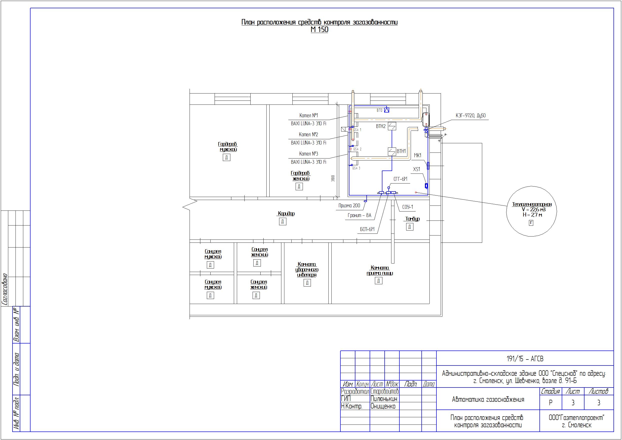
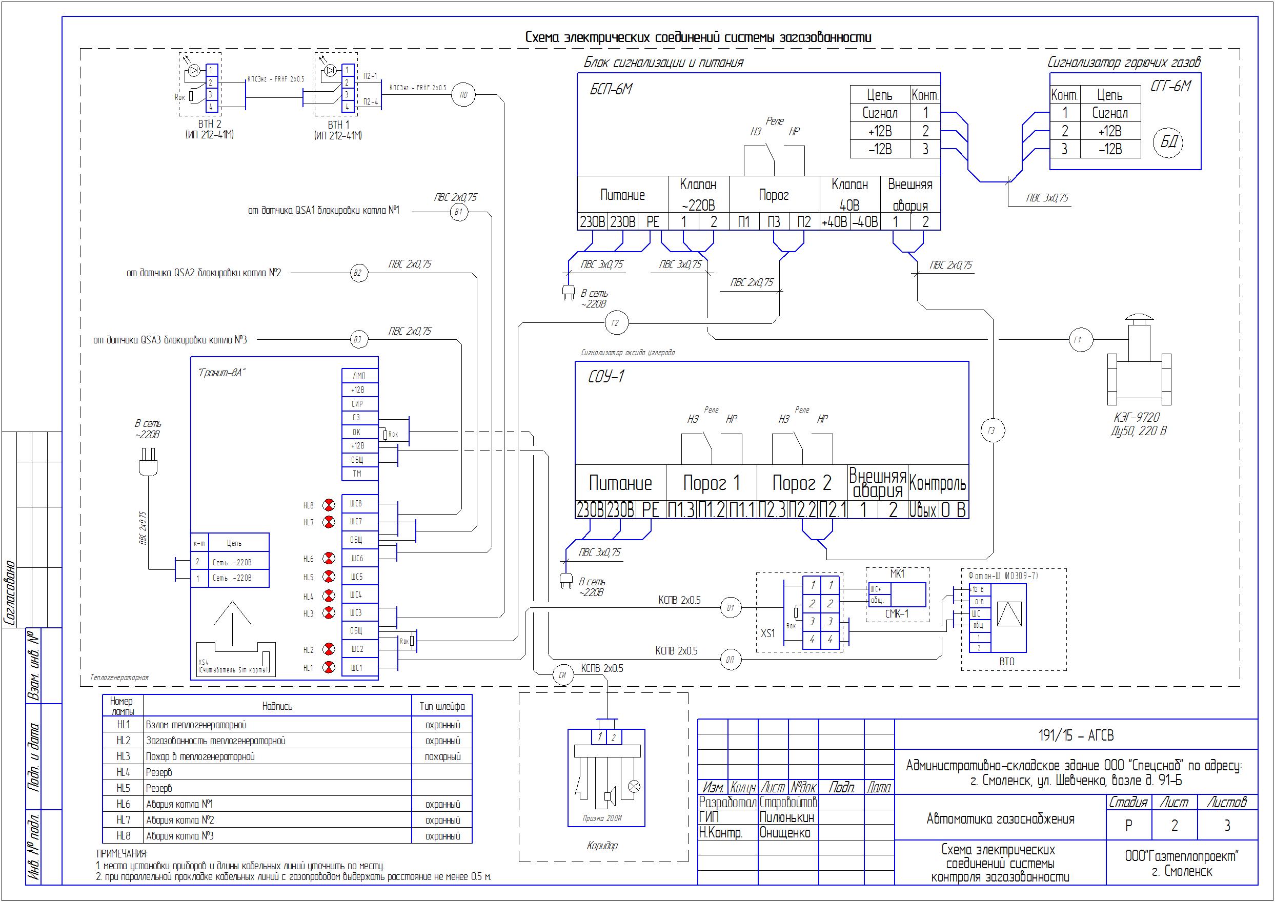
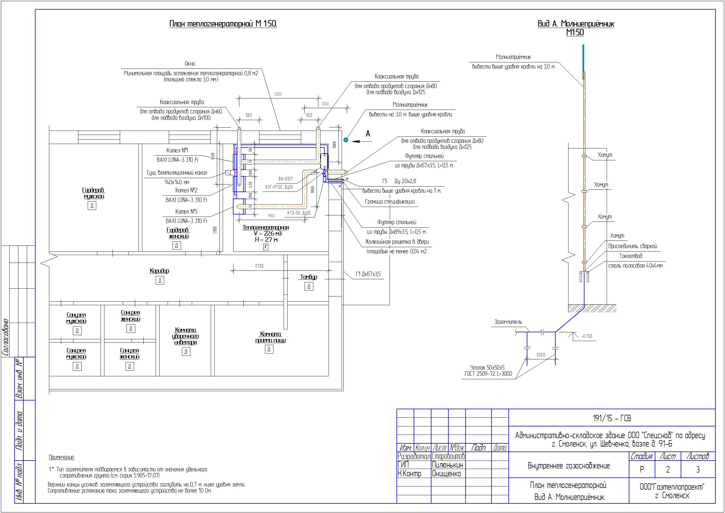
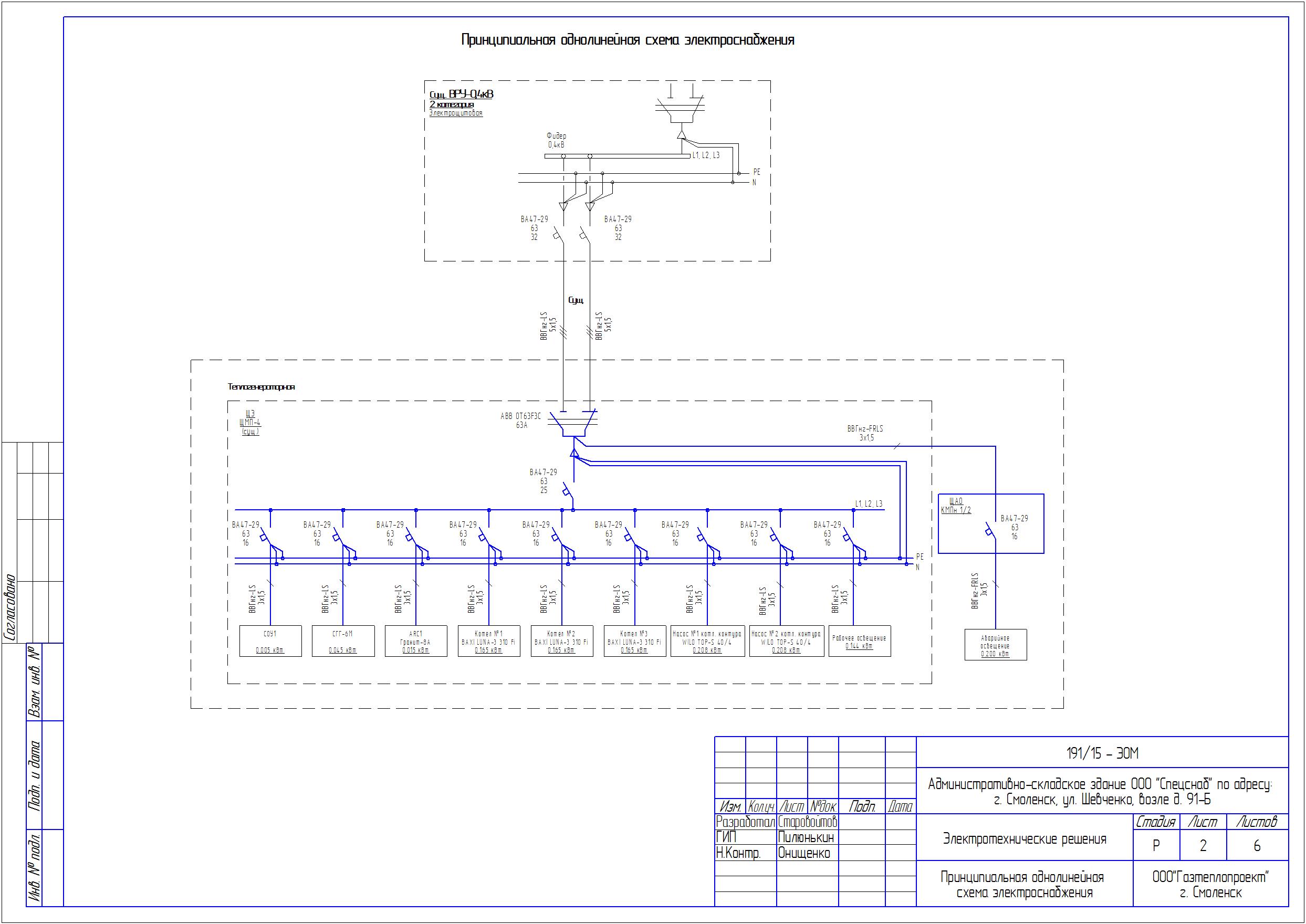
Объект: Административно-складское здание ООО "Спецснаб" по адресу:  г. Смоленск, ул. Шевченко, возле д. 91-Б. Система газоснабжения.

Инженерные изыскания

Проектная документация

Наружное газоснабжение

Внутреннее газоснабжение

Электроснабжение

Автоматизация

Мероприятия по обеспечению пожарной безопасности

Положительное заключение негосударственной экспертизы

Строительно-монтажные работы

В данный момент объект находится в стадии строительства. Подробный фотоотчет будет представлен по их завершению.

Проектирование

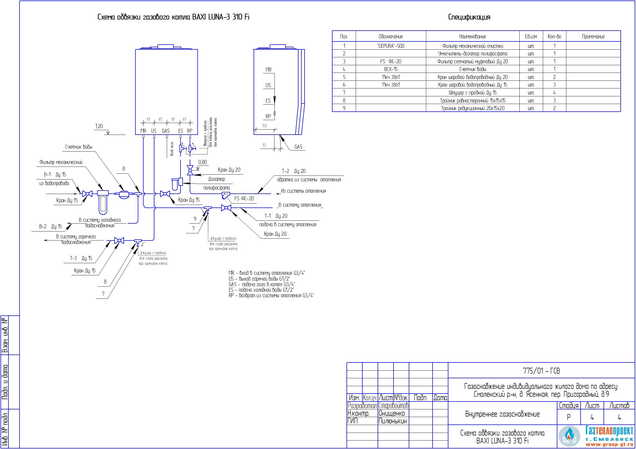
Объект: Индивидуальный жилой дом по адресу: г. Смоленск, д. Ясенная, ул. Пригородная, д. 9

Разделы - наружное газоснабжение, внутреннее газоснабжение

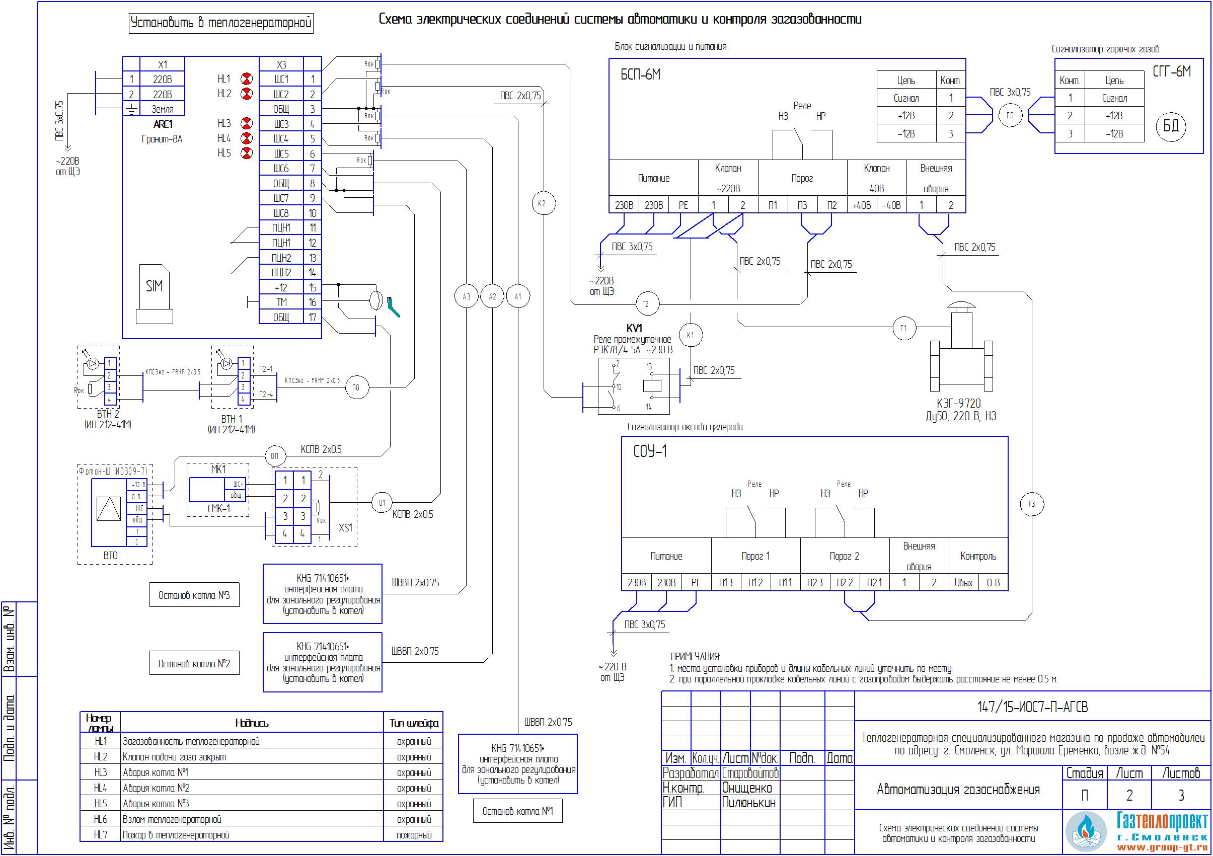
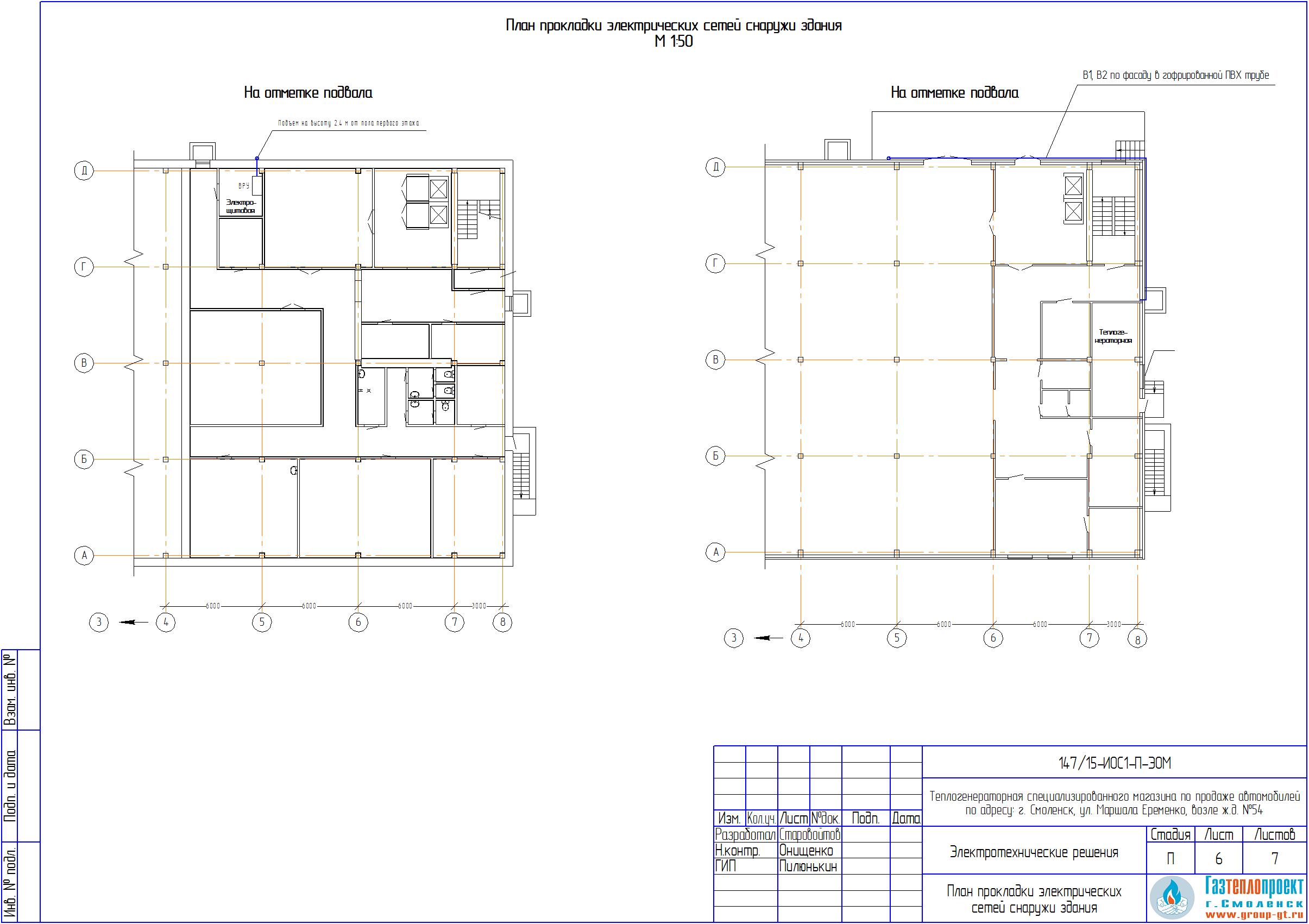
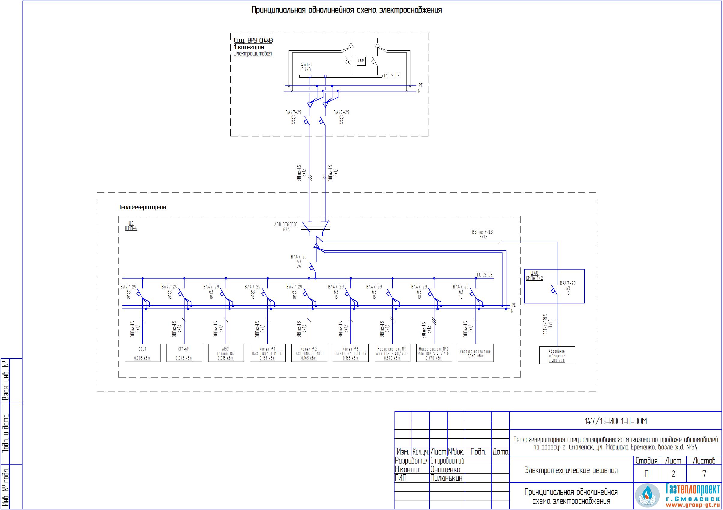
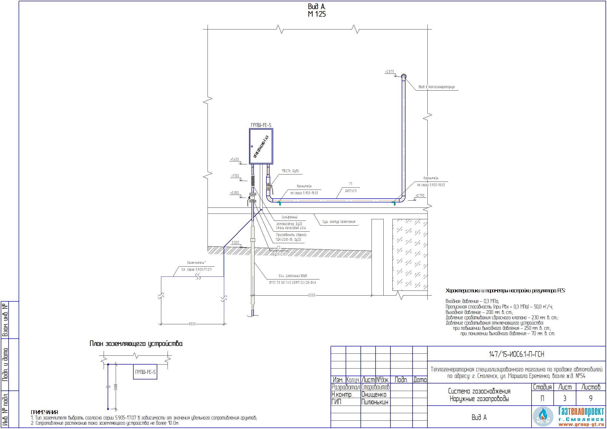
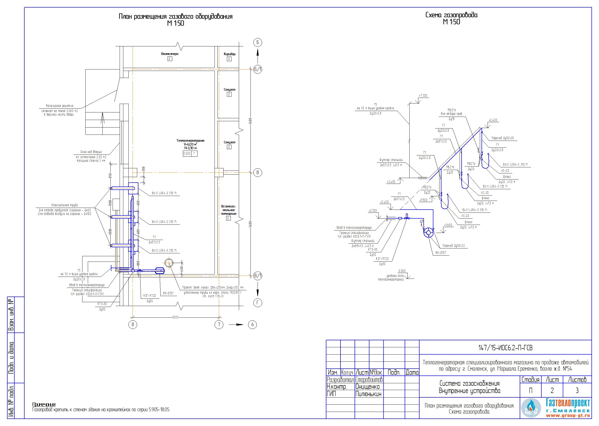
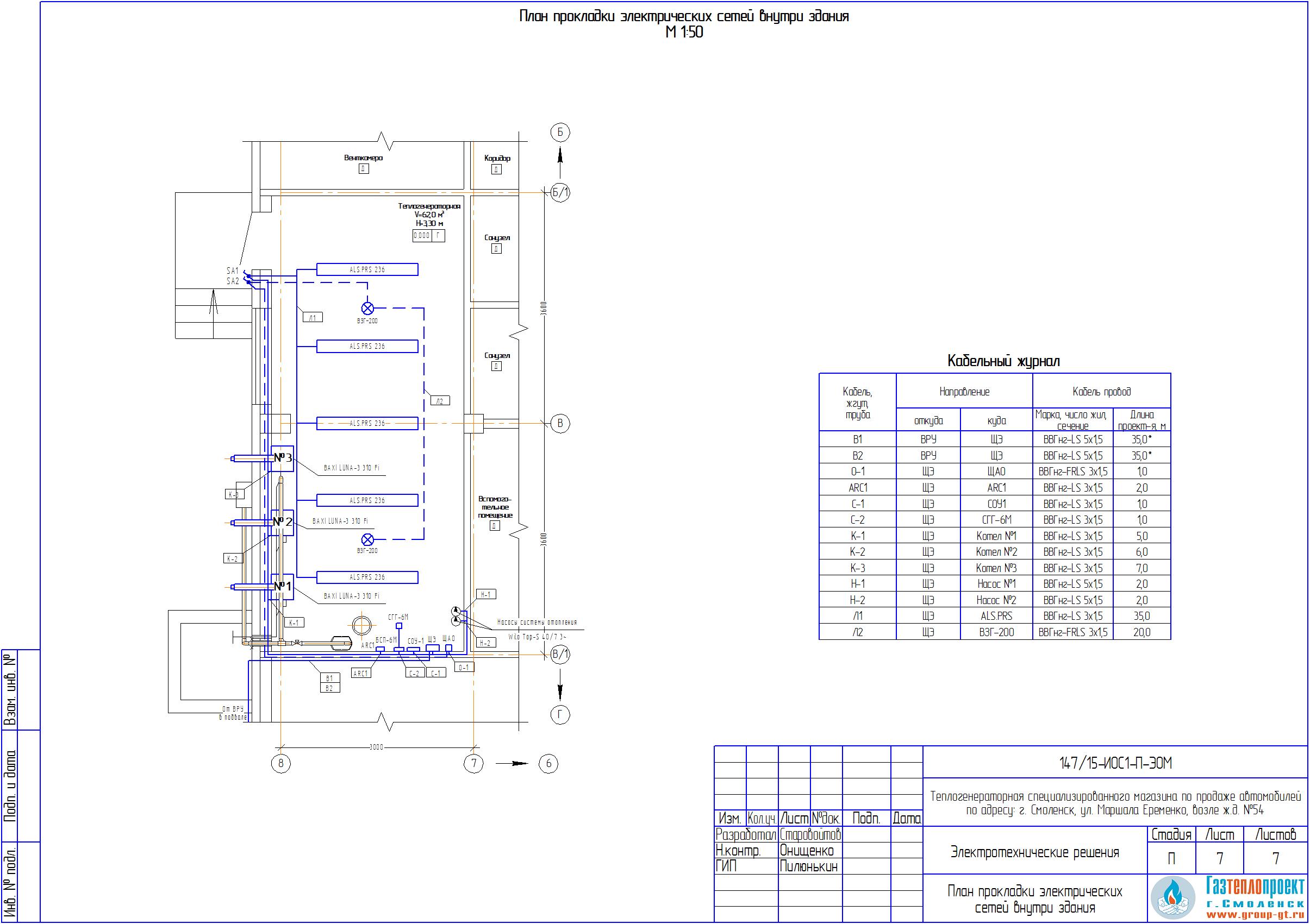
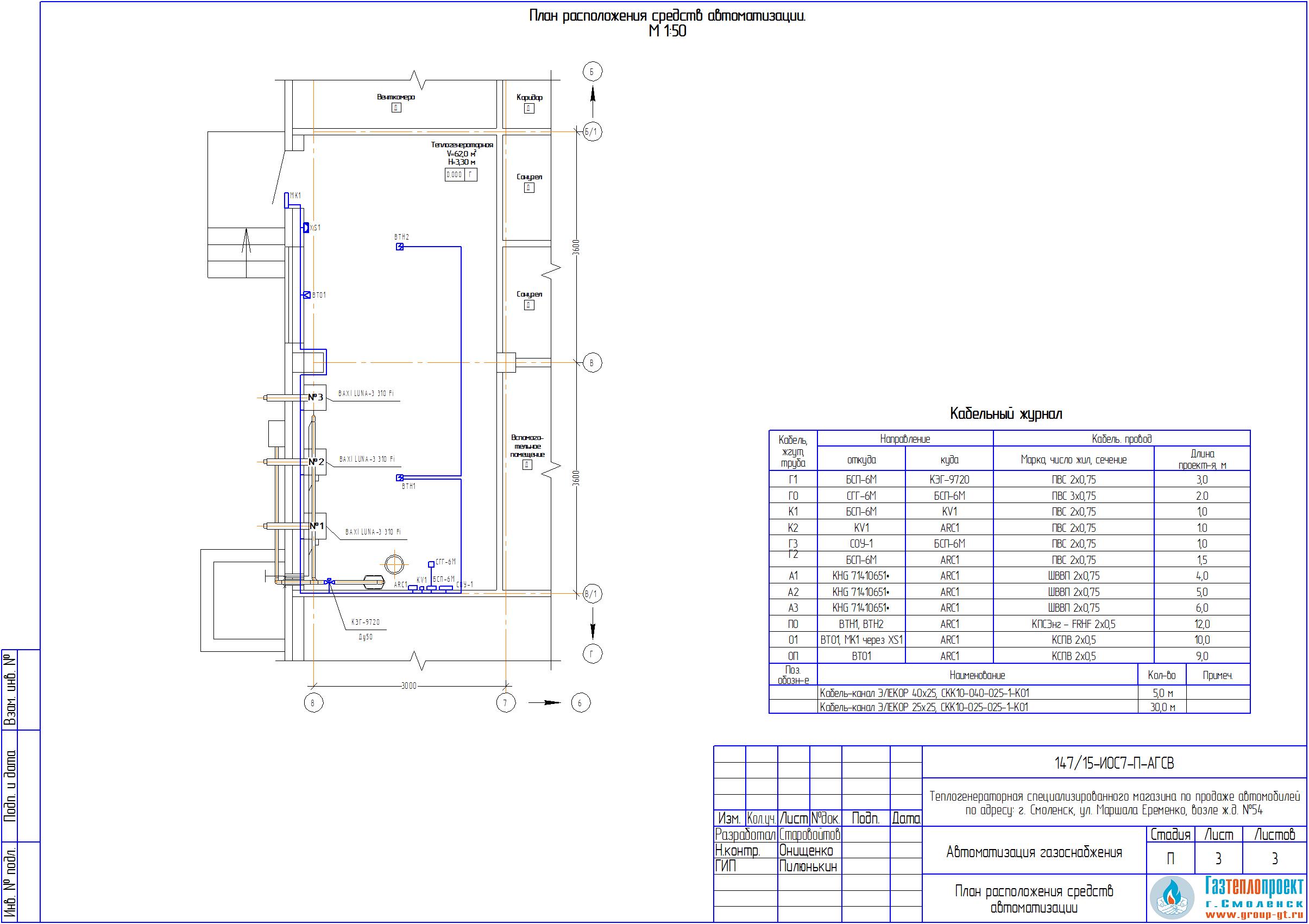
Объект: Теплогенераторная специализированного магазина по продаже автомобилей по адресу: г. Смоленск, ул. Маршала Еременко, возле ж.д. №54

Разделы - наружное газоснабжение, внутреннее газоснабжение, автоматизация, электроснабжение

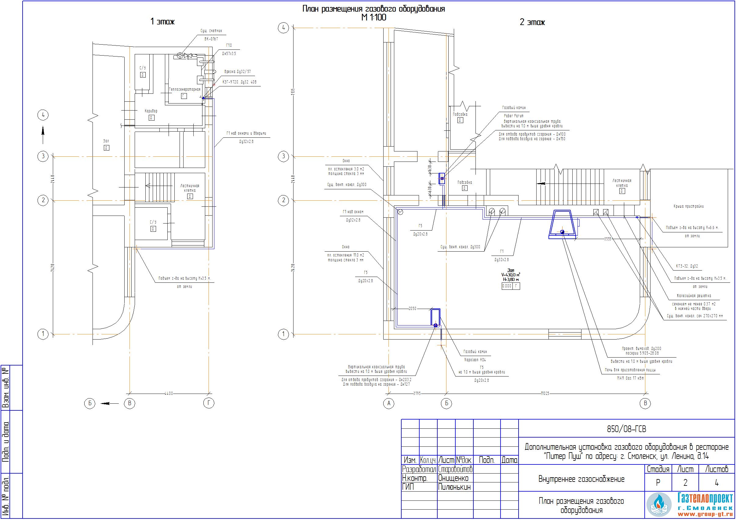
Объект: Дополнительная установка газового оборудования в ресторане "Питер Пуш" по адресу: г. Смоленск, ул. Ленина, д.14

Разделы - внутреннее газоснабжение, автоматизация

 

Заявка на услуги или консультацию

© ГК «ИТЦ Основа» -  полный комплекс работ по проектированию и строительству инженерных коммуникаций по Смоленску, Смоленской области и ЦФО , 2026

Мы на карте

214019, г. Смоленск, ул. Крупской, д. 30-Б, оф. 1  
+7 (4812) 542-601,  +7 (920) 668-24-58

E-mail: info.itcosnova@yandex.ru

 

МЫ В СОЦ. СЕТИ